BLV
Réhabilitation d'une grange en gîte convivial
Un nouveau souffle pour une grange au charme rural
Dans un ancien corps de ferme, ce logement de gardien, resté dans son jus pendant des décennies, ne demandait qu’à revivre. Intérieur daté, pièces cloisonnées, lumière absente : le lieu avait besoin d’une restructuration complète pour révéler son potentiel.
Objectifs :
Créer un gîte confortable et accueillant, capable d’héberger jusqu’à six personnes, dans un esprit à la fois champêtre et soigné. L’idée : offrir une vraie qualité d’usage, des espaces de convivialité, et transformer ce bâti ancien en source de revenus locatifs.
Actions clés :
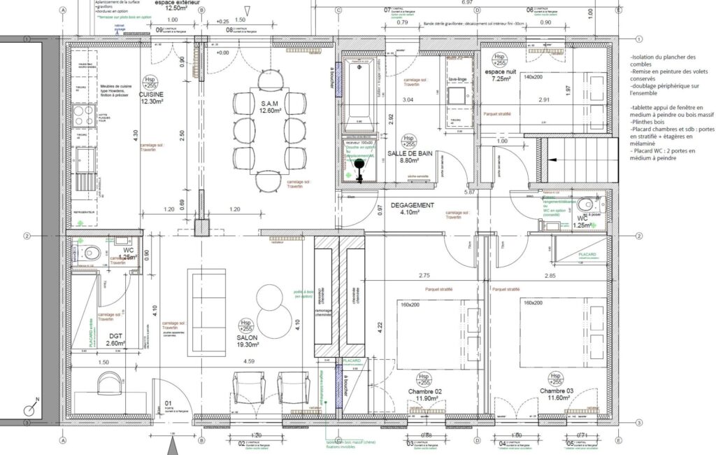
- Décloisonnement des espaces de vie pour fluidifier les circulations
- Création d’une claustra en bois à l’entrée pour dissimuler WC et placards et aménager un espace bureau confidentiel
- Rénovation complète de la cuisine et de la salle de bain
- Isolation intérieure des murs et du plancher des combles
- Pose d’un sol en travertin pour préserver l’ambiance champêtre
- Remplacement des menuiseries extérieures et ravalement à la chaux (déclaration préalable déposée)
- Aménagement d’une terrasse prolongée sur le jardin
En image



Avant

Avant

Transformer un bâti ancien ?
Site réalisé par l'Atelier du Design | Mentions légales