Le Javascript n'étant pas activé sur votre navigateur, le site risque de ne pas s'afficher correctement.

CQFD

Construction d’un bâtiment agroalimentaire bio à usage de production : pâtes et sauces

  • Localisation :Villenoy (74)
  • Surface :980 m²
  • Mission :Conception, Permis de construire
  • Livraison :2022
  • Client :privé

Construction d’un bâtiment agroalimentaire bio à usage de production : pâtes et sauces

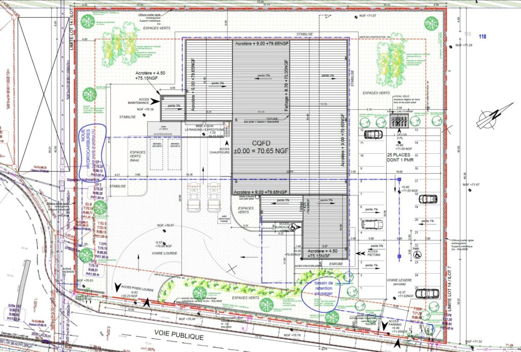
Un bâtiment de production de 980 m² a été conçu dans une zone industrielle pour une entreprise de fabrication de pâtes et sauces bio. Le projet comprend zone d’accueil, zone de production et zone personnel, avec toutes les réglementations locales et industrielles prises en compte. La mission a porté sur la conception et le dépôt du permis de construire, afin de créer un outil fonctionnel au service de l’activité de production.

Actions clés :

  • Dossier de permis de construire

En image

Façades

Façades

Plan de masse

Votre entreprise mérite un espace fonctionnel et valorisant.

Site réalisé par l'Atelier du Design | Mentions légales