Laboratoire
Local brut aménagé en laboratoire de biologie médicale : accueil, bureaux et parcours patient
Local brut aménagé en laboratoire de biologie médicale : accueil, bureaux et parcours patient
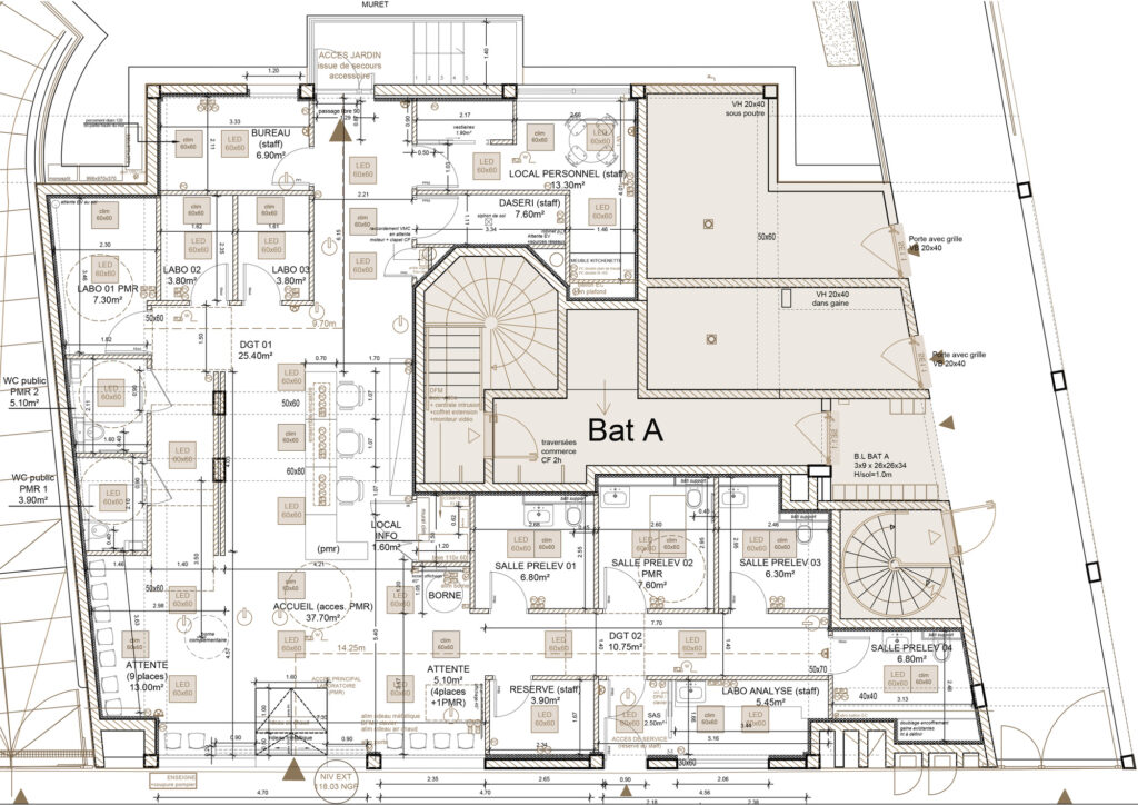
Un local brut de 185 m² a été réaménagé pour créer un laboratoire de biologie médicale moderne et fonctionnel. L’espace comprend un accueil, des salles de prélèvement, des bureaux, des sanitaires et une salle de repos pour le personnel. L’aménagement optimise la circulation des patients et du personnel, respecte les normes ERP, l’accessibilité PMR et le code du travail, et intègre une vitrine sur rue conforme au cahier des charges de l’immeuble.
Objectifs :
- Aménagement d’espaces de services de proximité
- Créer un espace ergonomique et pratique pour les patients et le personnel.
- Optimiser le parcours client / patient, de l’entrée jusqu’aux zones réservées.
- Assurer le respect de la réglementation ERP, accessibilité PMR et sécurité incendie.
- Organiser les zones de travail, accueil et flux annexes (livraisons, stockage, personnel).
- Concevoir une vitrine et signalétique visibles et accessibles pour attirer et orienter les clients.
Actions clés :
- Étude du local brut et définition d’un programme fonctionnel sur mesure.
- Dépôts réglementaires : déclaration préalable pour façade, autorisation d’enseigne et autorisation de travaux ERP.
- Conception de la vitrine accessible PMR et d’une signalétique claire pour le parcours client.
- Coordination des travaux et suivi complet du chantier, avec contrôle de la conformité aux normes ERP, incendie et accessibilité.
- Aménagement intérieur ergonomique des bureaux, salle de repos, accueil et sanitaires.
En image





Votre futur local mérite un aménagement optimisé ?
Site réalisé par l'Atelier du Design | Mentions légales