Pigalle
Transformation d'un grand studio en 2 pièces confortable
Un appartement repensé pour une vie moderne
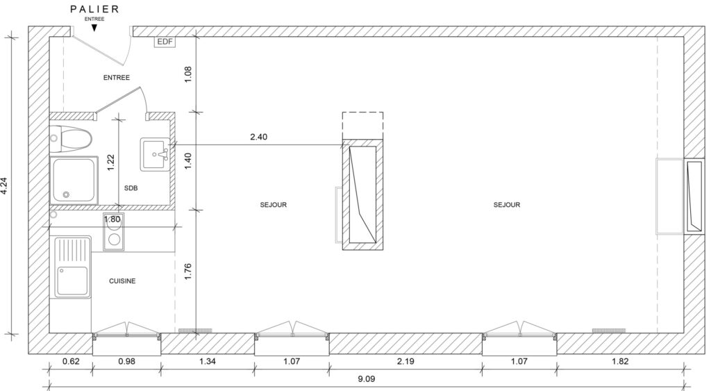
Cet appartement de 40 m², situé dans le quartier animé de Pigalle, en bas de Montmartre, était initialement un grand studio sans grande fonctionnalité. Avec une configuration vieillissante et un sol très irrégulier, cet espace manquait de clarté et de praticité. L’objectif était de transformer ce lieu en un appartement moderne, fonctionnel, et optimisé pour un usage quotidien, tout en augmentant sa valeur pour une future revente.
Objectifs :
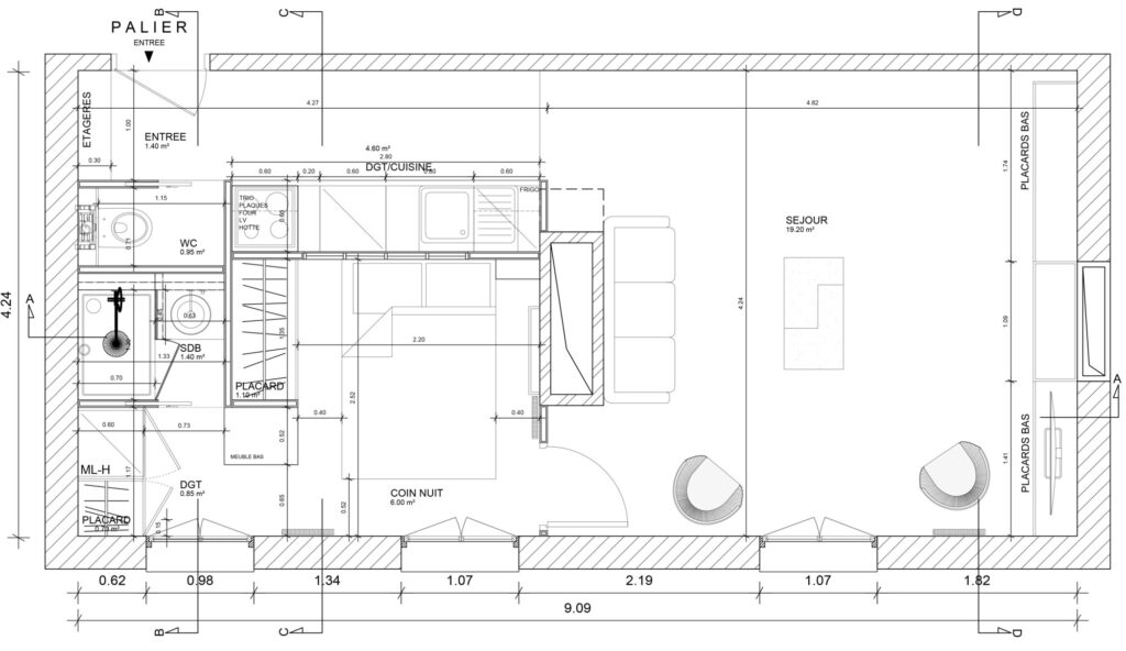
Le projet visait à repenser entièrement l’agencement de l’appartement, en créant deux espaces distincts tout en maximisant la surface habitable. L’objectif était de rendre cet appartement plus fonctionnel, en optimisant chaque mètre carré, tout en conservant l’ambiance cosy et chaleureuse d’un espace parisien. L’élément clé de ce projet était la préservation de la cheminée, tout en réorganisant les espaces pour une meilleure fluidité et confort de vie.
Actions clés :
- Transformation de l’agencement : Le grand studio a été divisé en deux pièces (pièces à vivre, et chambre)
- Une bibliothèque sur-mesure autour de la cheminée conservée
- Réorganisation des espaces sanitaires
- Délimitation des espaces par une verrière sur-mesure
- Choix des luminaires
Résultat :
Livré clé en main, cet appartement de 40m² transformé en 2 pièces dispose désormais d’un plan optimisé et ultra fonctionnel.
En image




Avant

Après

Réinventer votre pied à terre parisien ?
Site réalisé par l'Atelier du Design | Mentions légales

